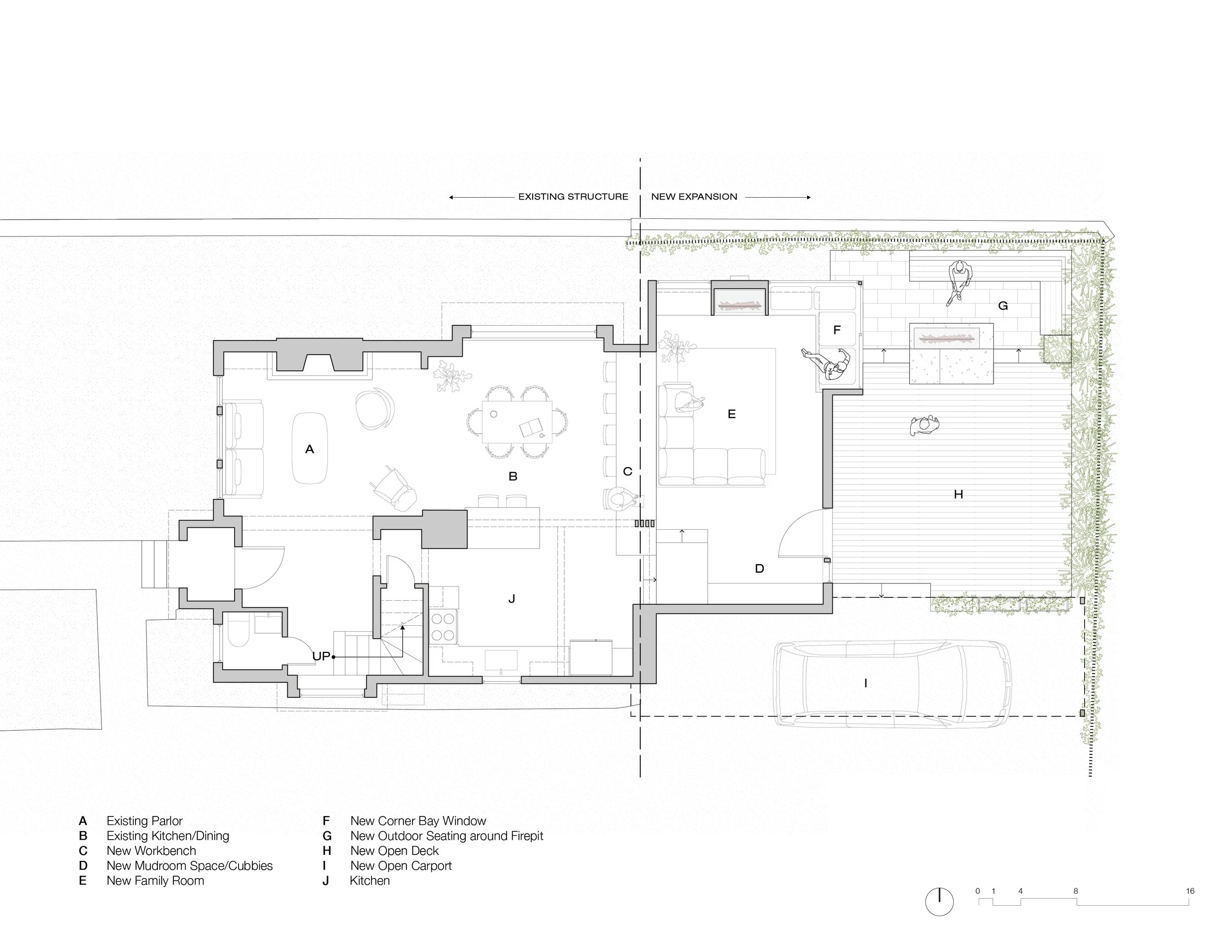
Walnut Expansion —- West Seattle, WA

A historic 1908 Seattle Craftsman was expanded for a growing young family of six.  The new main and upper-floor extension maximizes living space allowed by code on this small urban parcel. A modern take on classic bay windows creates nooks and cozy places for children and parents, and outdoor space created in the compact backyard lives large.

 
 

Recognition

 
 
 
 
 
 
 
 
 
 
 
 
 
 
 
 
 
 
 
 
 
 
 
 
 
 
 
 

Design Team: Matt Wittman, Jody Estes, Angela Yang, Julia Frost
Construction: MLF Built
Photography: Rafael Soldi

 
Previous
Previous

Whidbey Uparati

Next
Next

Wenatchee River Cabin